Module bureau 10'

CM-100
perspective
plan 2D
No items found.
perspective
plan 2D
No items found.
Neuf

Fiche technique

Nom du module :
Module bureau 10'
Référence :
CM-100
Fabricant concerné :
Containex
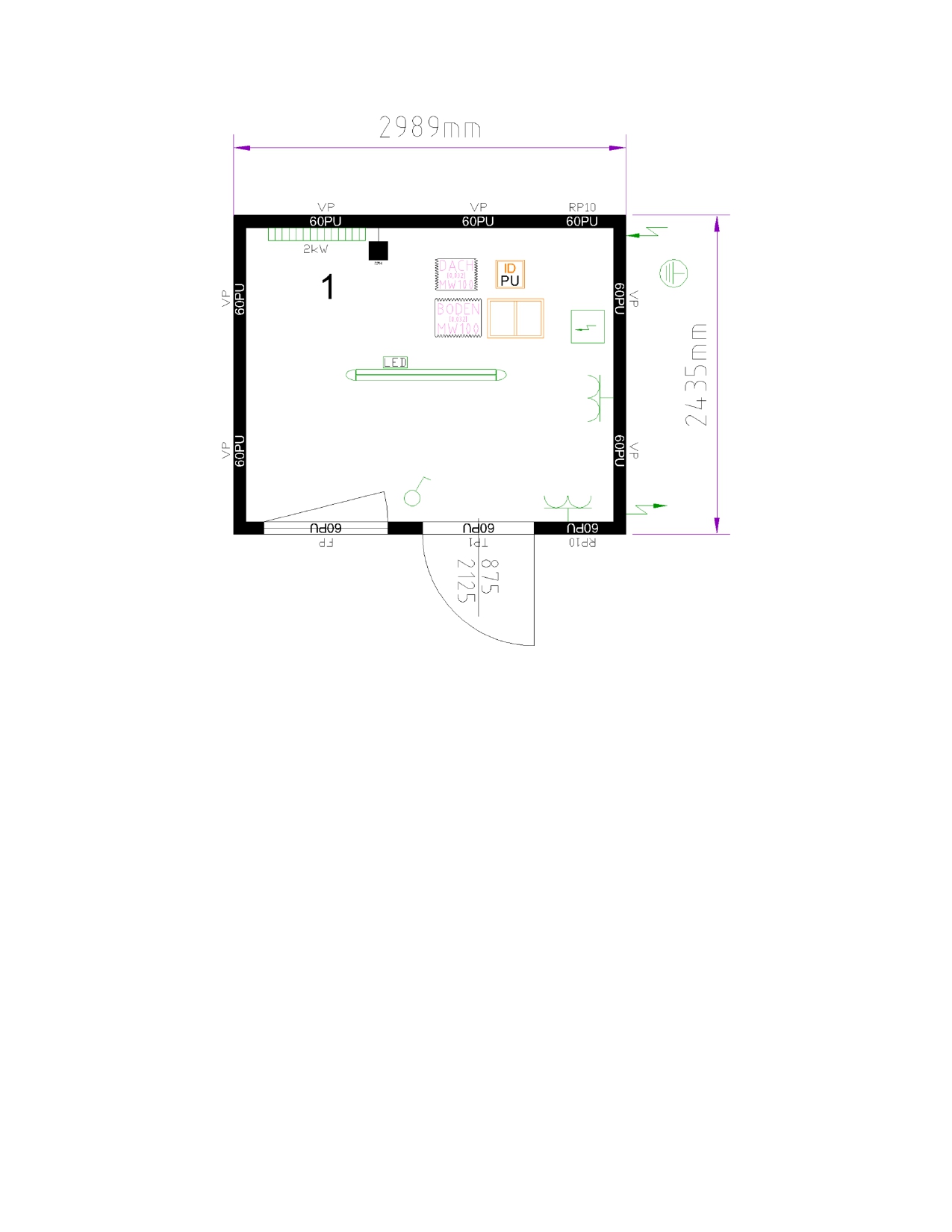
Dimensions extérieures (L x l x h) :
2989x2435x2591 mm
Dimensions inytérieures (L x l x h) :
Hauteur sous plafond
2300mm
Assemblage:
Oui :
Non :
Structure juxtaposable et superposable.
Structure et enveloppe :
  • Ossature métallique galvanisée à chaud, composée de poteaux d’angles, traverses hautes et basses boulonnées.
  • Panneaux sandwich démontables et interchangeables, finition extérieure tôle acier laquée RAL standard Containex.

    Enveloppe parfaitement étanche grâce à un système d’assemblage à joints compressibles et visserie inox.

    Manutention

    Quatre points d’allège ISO intégrés aux coins supérieurs pour levage par grue.

    Passages de fourches incorporés en long-pan pour manutention par chariot élévateur.

    Ancrage et levage conformes aux prescriptions Containex, avec résistance de structure certifiée CE

    Plafond isolé en laine minérale 100 mm, finition tôle blanche lisse.

    Isolation Parois
    Isolation Plafond
    Isolation Plancher
    Menuiseries

    1 porte pleine acier isolée, serrure à barillet.

    1 fenêtre PVC double vitrage 875 × 1 000 mm, oscillo-battante, avec habillage périphérique.

    Équipements électriques

    Tableau électrique complet conforme CE.

    Éclairage LED plafonnier, convecteur mural 2 000 W avec thermostat, prises 2P+T et interrupteurs intégrés

    Câblage sous goulottes périphériques, alimentation par boîte extérieure étanche

    Convecteur 2000W

    Commentaires

    Le module BM10 Containex offre une surface utile d’environ 7,5 m², adaptée à un bureau, idéal pour un poste de garde ou un local technique dans le cadre d'un emplacement restreint.

    Sa conception robuste en acier galvanisé garantit une grande durabilité et une maintenance réduite.

    Le module peut être utilisé seul ou intégré dans un ensemble modulaire .

    Assemblable, juxtaposable ou superposable avec d’autres unités de la gamme Containex uniquement.

    Ce modèle est disponible dans plusieurs coloris standards ou selon votre souhait. Option peinture.

    Nombreuses options d’aménagement disponibles — nous consulter pour toute configuration.

    Suplément tarifaire RE2020 simplifiée 2025 Toit & Sol Epaisseur 100 mm PU +260 € HT.

    Délai 1 a 2 semaines selon stock Containex

    Tarif
    8500 € HT
    Télécharger la fiche technique

    Voir nos autres modules :

    VENDU